Однокомнатная квартира в новостройке 37,94 м2 по ул. Фестивальная 27 за 2598890 руб.

Адрес
Адрес Фестивальная, 27
Описание
Цена 2 598 890 р. (68 500 р./м2)
Подать заявку на ипотеку
Количество комнат Однокомнатная
Этаж 2
Этажность дома 3
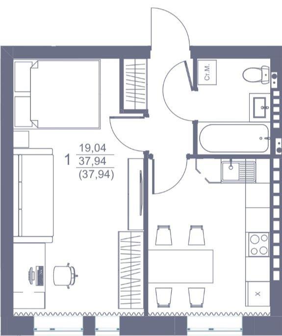
Общая S, м2 37,94
Жилая S, м2 19,04
S кухни, м2 9,00
🏠 В продаже однокомнатная квартира, S - 37.94 кв.м Теплый пол! 🏠расположение: ЖК Золотой квартал, с. Нежинка, 70 лет Победы ✅ предчистовая отделка WНIТЕ ВОХ. В которую входит: • Выровненный бетонный пол, уже подготовленный под любое финишное покрытие • Установленные оконные блоки с подоконниками, с выровненными откосами • Выровненные, оштукатуренные и прогрунтованные стены • Ровные подготовленные потолки • Готовая система отопления • Разведенная от электрощитка проводка по всем комнатам • Монтаж входной двери • Выполнены все сантехнические манипуляции, обустроены водопровод и канализация Одно из главных преимуществ этого дома – малое количество квартир, особая и уютная атмосфера, а также индивидуальное отопление каждой квартиры и подача горячей воды, для этого установлен двухконтурный газовый котёл НАVIЕN DЕLUХЕ. Большой плюс - сельская прописка - минус 70% на ОСАГО, а также расценки за газ и коммунальные услуги существенно сэкономят платежи из семейного бюджета. Дом обладает внешней привлекательностью, отличным теплоизоляционными и шумоизоляционными характеристиками. Весь квартал асфальтирован - проблем с парковкой нет, ежедневно школьный автобус отвозит и привозит детей с лицея, в ближайшей доступности уже построенный детский сад, торговая сеть Пятёрочка. Так же в самом ЖК имеется 2 продуктовых магазина, пекарня, своя Управляющая компания, фельдшерский пункт. ✅ Инфраструктура: рядом Европейский лицей, а также есть школьный автобус, который доставит Ваших детей до лицея. В 5 минутах - детский сад КРОНА, Пятёрочка, Магнит , Ваниль, своя Управляющая компания, фельдшерский пункт. Так же нас ищут по запросам: Новостройки Оренбург , квартиры от застройщика , ремонт квартир , акции новостройки , жилые комплексы , снять квартиру ,продажа от застройщика ,продажа от собственника ,продажа без посредников ,жилые комплексы , квартира в Дзержинском районе , Ленинский район , Промышленный район , квартира в новом доме , квартира в кирпичном доме ,напрямую от застройщиков , квартира с мебелью , ипотека , недвижимость Оренбург , обмен квартиры , квартиры льготная ставка , семейная ипотека , загородная недвижимость , инвестиции в недвижимость , надежные застройщики , сельская ипотека , новостройки дешевле застройщика , квартиры дешево , скидки , сертификат , материнский капитал , военная ипотека ,выгодная цена , вторичка , первичка , с ремонтом , срочная продажа квартир id: 30798
Квартира в новостройке в Санкт-Петербурге
Дата 01.07.2025 23:23:50
Объявление № 22715798
Дата подачи:
2 июля 2025 г. 3:23
Дата обновления:
2 июля 2025 г. 3:23
Просмотров 20 Хотите продать быстрее?

Продавец
Агентство недвижимости:
Абубакиров Вадим Анварович
email: abubakirow.v@yandex.ru
Показать номер телефона
Пожаловаться
Комментарии:
Добавить